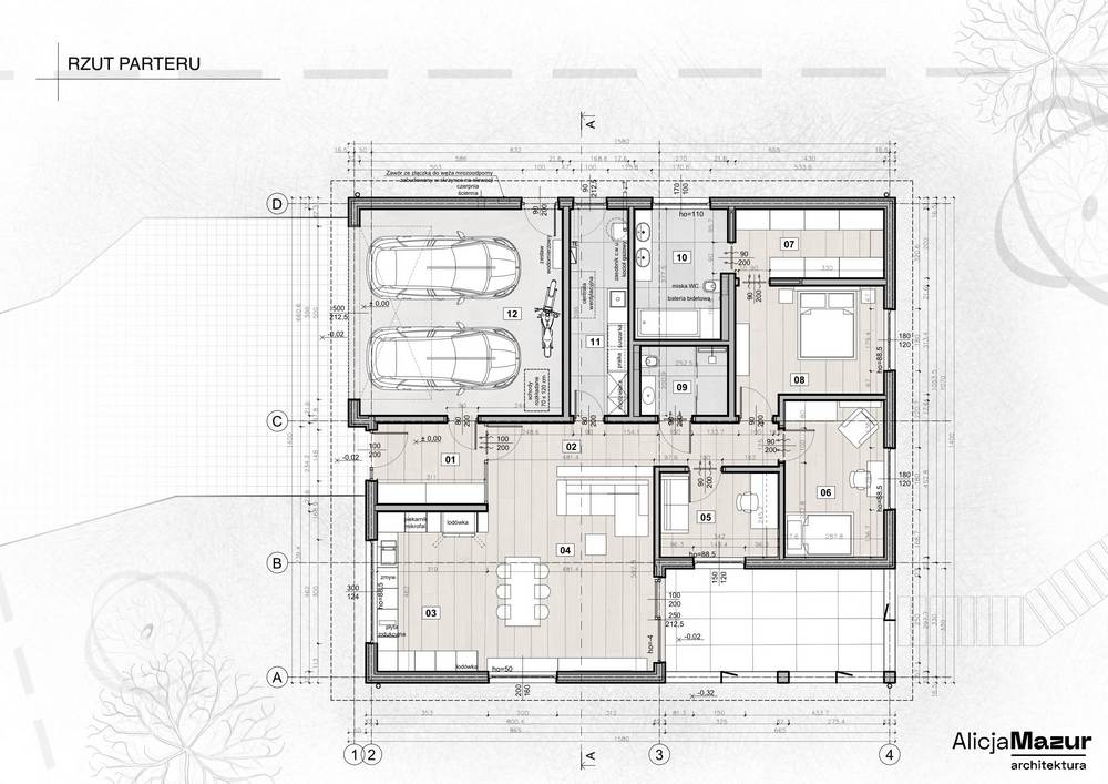
Dom jednorodzinny parterowy
Budowa budynku mieszkalnego jednorodzinnego parterowego z dachem kopertowym, o przestronnym wnętrzu i minimalistycznej bryle. Układ pomieszczeń podzielony został na strefy funkcjonalne – część dzienną z otwartą kuchnią, jadalnią i pokojem dziennym, połączonym z tarasem oraz strefę prywatną obejmującą sypialnie i łazienki. W bryle budynku zaprojektowano garaż dwustanowiskowy.
Obiekt: dom jednorodzinny
Inwestor: prywatny
Lokalizacja: Gierałtowice
Data projektu: 2024
Data realizacji: 2025
Powierzchnia całkowita: 195 m2







