Budowa hali produkcyjnej z towarzyszącym budynkiem usługowym
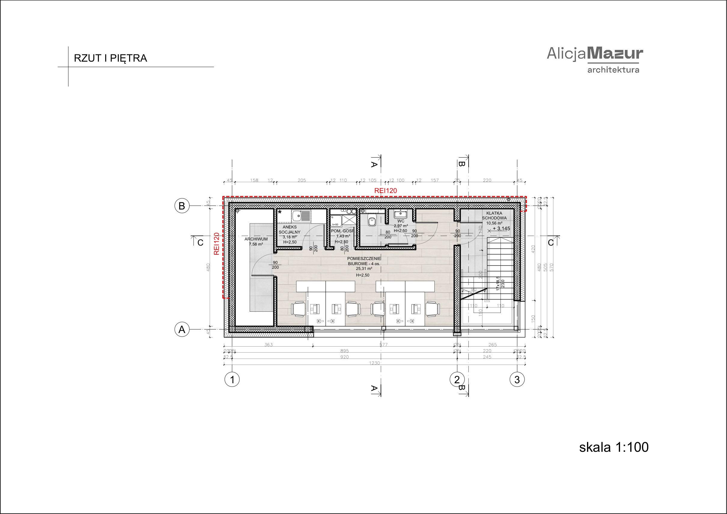
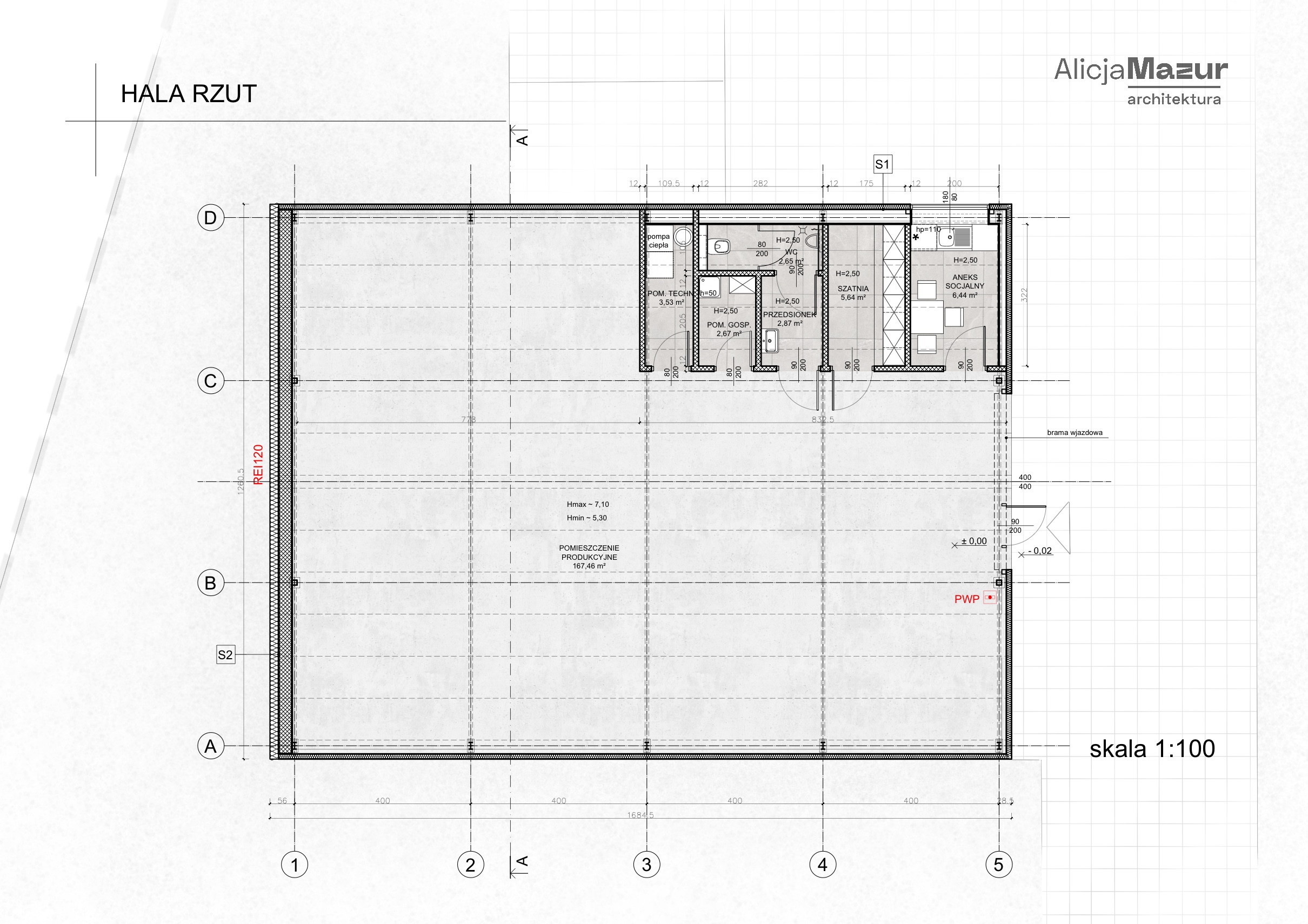
Obiekt: hala magazynowa, budynek usługowy
Inwestor: Sicuro
Lokalizacja: Zabrze, Kopalniana
Data projektu: 2025
Powierzchnia użytkowa: 190 m² (hala), 150 m² (budynek usługowy)
Kubatura: 1550 m³ (hala), 740 m³ (budynek usługowy)

Projekty architektoniczne, budowy nowych obiektów, przebudowy budynków istniejących, zmiany sposobu użytkowania, inwentaryzacje. Koncepcja, projekt budowlany, projekt wykonawczy, nadzór autorski na budowie. Pracuję na terenie Zabrza, Gliwic, Bytomia, Rudy Śląskiej i całego Śląska.
Alis Projekt Alicja Mazur
ul. Tarnopolska 65
41-807 Zabrze
NIP: 648 251 43 08